東京都荒川区K様 マンションリフォーム
安心が続くライフステージに寄り添う住まい
家族のために先を見据えた住まいへ。広い空間がほしいという願いを叶えるため、玄関横に大胆な採光建具を採用し、光が巡る空間に仕上げました。お施主様セレクトのクロスが彩る空間に、吊戸棚を撤去した開放的なキッチンを導入。今の暮らしを楽しみながら、数十年先まで「ずっと安心」が続くようにリフォーム。
お客様からのご要望
中古マンションを購入しました。将来の家族構成の変化(ライフステージの変化)に対応できる住まいへリフォームしたい。
エル・アップからのご提案
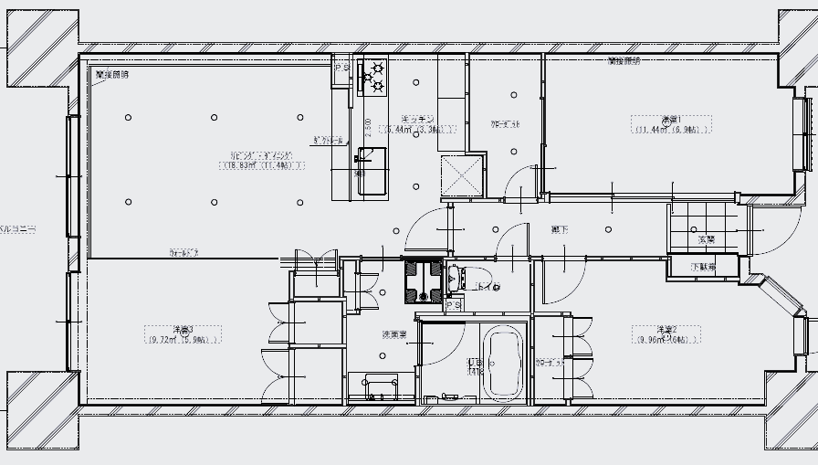
広い空間がほしいという希望により、玄関横の壁を撤去し全面建具に変更。大型の建具(採光を考慮したドア)を採用。キッチンは位置を変えず、吊戸棚と壁を撤去。オープンな対面カウンターへ変更し、背面に収納を確保。リビングは今は広々と、将来は個室になるよう、あえて壁を作らず「下地」だけを施工することをご提案。
| 地域 | 東京都荒川区 |
|---|---|
| 築年数 | 築16年 |
| 工期 | 約1か月半 |
| 施工箇所 | キッチン・内装 |
| 施工内容 | キッチン・内装リフォーム |
| 施工費用 | 796万円 |
| 使用商材・建材 |
[キッチン]トクラス コラージア [カップボード]トクラス コラージア [トイレ]TOTO ピュアレストQR [ウォシュレット]TOTO BV2 [フローリング]Panasonic ウスイータ [建具]Panasonic ベリティスシリーズ |
施工前
施工後
LDK
関接照明を多用し、ダクトレールを設置。キッチンは位置を変えず、吊戸棚と壁を撤去してオープンな対面カウンターへ変更。背面にカップボードを設置することで収納を確保。将来、部屋を仕切れるよう「下地」を事前に施工。現状は広々としたリビングに見えるが、必要に応じてレールと建具を後付けできる仕様にすることで柔軟な暮らしを叶えた。
洋室1・洋室2・ウォークインクローゼット・廊下
玄関横の壁を撤去し全面建具に変更。採光を考慮した大型の建具を採用。
お客様からの声
前回もお願いしていたため、安心してお任せできました。家族意向を組んでいただきありがとうございました。















